リフォーム/フルリフォーム/リビング/居室/キッチン/浴室/洗面室/トイレ/リノベーション
築60年以上が経過したマンションリノベーション♪ PART①
AFTER
作業・施工内容
築60年以上が経過したマンションのリノベーション工事のBEFOR&AFTERです。
【既存平面図】 BEFOR

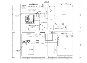
【プラン平面図】 AFTER

既存ではリビングにあたる場所にキッチンを新設するなど
水廻りの位置を含めた大きな間取り変更を行いました。
【LDK】 AFTER

【LDK】 AFTER

【キッチン】 AFTER

【キッチン】 AFTER

【キッチン 食洗器】 AFTER

【キッチン】 BEFOR

昔ながらのキッチンスペースやダイニング、リビングスペースが
分離されていて家事動線や効率が良くない間取りでした。
今回のリノベーションでは対面式のキッチンを計画し、
背面にはカップボードとパントリーを新設することで
家事効率も良く、収納スペースも多く確保できました。
食洗機も新設しましたので、家事の時短にも繋がりました。
今回設置したキッチンは『Panasonic L-CLASS』です。
既存間取りは4LDKでしたが、そこから一部屋減らし、
ご家族がそろってくつろげる広々としたLDK空間を設けました。
今回はLDK空間のBEFOR&AFTERをご紹介いたしましたが、
次回は最近採用される方も多いランドリールームなどを含めた
他のお部屋のご紹介をさせていただきます。
お施主様の想いやイメージに寄り添ったご提案をさせていただきます。
リフォームのご用命は是非エルフォーハウジングまで。
| エリア | 西宮市 |
|---|---|
| 工事内容 | フルリノベーション
|
| 工事期間 | 3ヶ月 |
関連ページ
住宅リフォーム、リノベーションや店舗改装ならエルフォーハウジングにお任せください!